PLANTOELICHTING :
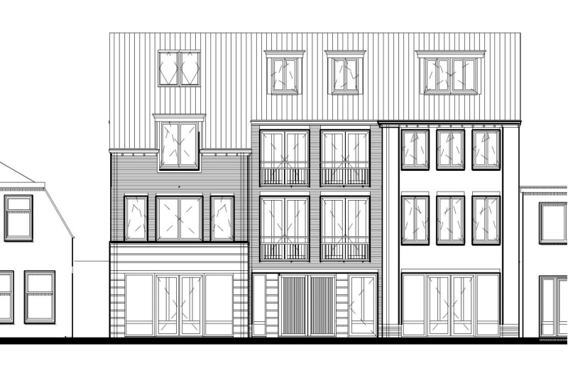
Langs de Steynlaan te Zeist staan een tweetal gedateerde panden, het bestemmingsplan biedt hier veel bouwmogelijkheden met deze inbreiding met een woongebouw benutten we die optimaal.

In goed overleg met de stedenbouwkundige van de gemeente is hier een woongebouw met 8 appartementen mogelijk gemaakt, met als belangrijkste voorwaarden dat de kenmerkende ritmiek van de kavel breedte ook bij de nieuwbouw behouden bleef.

Door de hoofdbouwmassa op te delen in meerdere afleesbare elementen voegt het gebouw zich in haar omgeving.

D Advertentie 2020 Pascal

PDF – 4,6 MB 1705 downloads